The Addington
BRAISWICK, COLCHESTER
THE ADDINGTON
THREE BEDROOM SEMI-DETACHED HOME
FLOOR PLANS
GROUND FLOOR
| Kitchen | 3m x 2.5m |
| Living/Dining Room | 8m x 5.4m |
| Cloakroom | 2m x 1.4m |
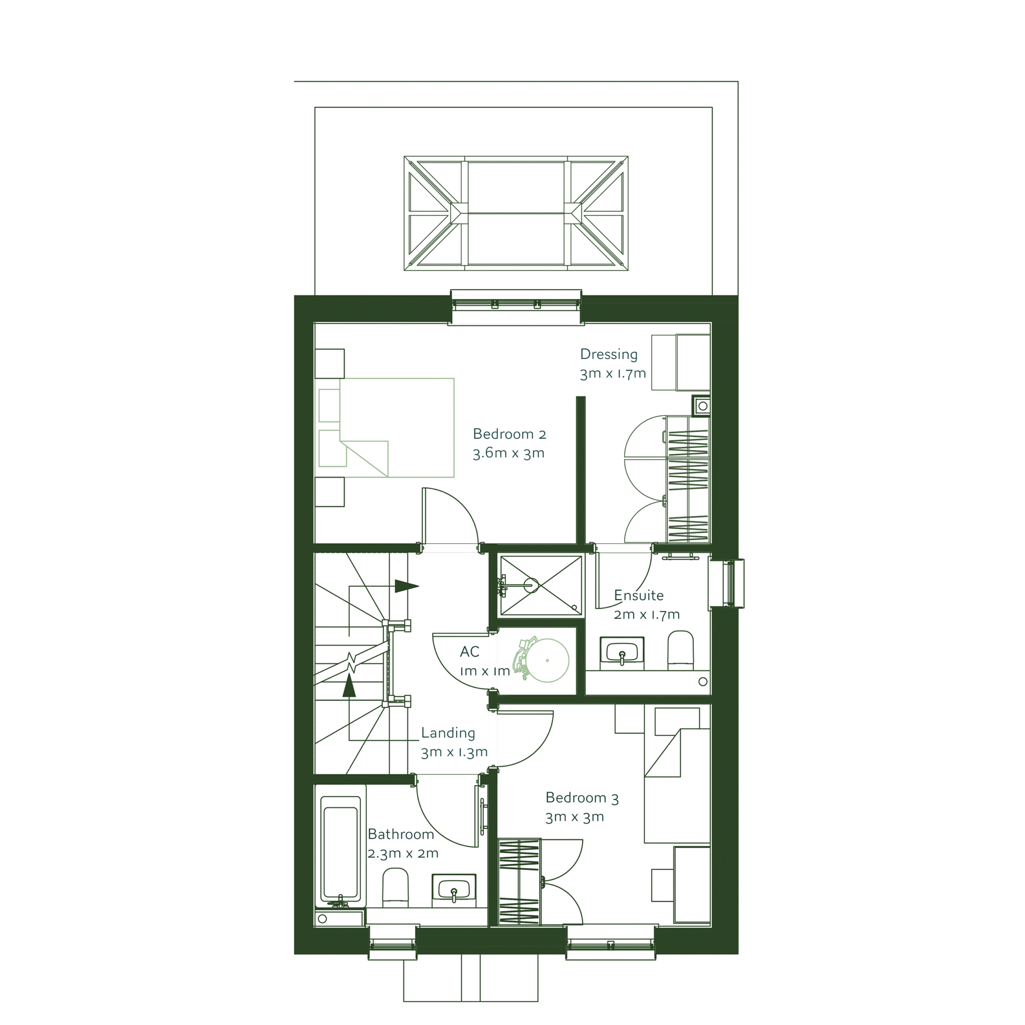
FIRST FLOOR
| Bedroom 2 | 3.6m x 3m |
| Dressing Room | 3m x 1.7m |
| Ensuite | 2m x 1.7m |
| Bedroom 3 | 3m x 3m |
| Bathroom | 2.3m x 2m |
SECOND FLOOR
| Principal Bedroom | 4.1m x 3.9m |
| Ensuite | 3m x 2.5m |
| Store | 2.3m x 1.8m |
SPECIFICATION
KITCHENS & UTILITY ROOMS
- Commodore Tatton Shaker kitchen range in Pebble with chrome handles
- Miami White Quartz worktops and upstands
- Fully integrated Bosch appliances including a built-in single oven, 4-ring touch control electrical hob, dishwasher, fridge freezer, stainless steel 1.5 bowl sink and wine cooler
INTERNAL FEATURES
- Low energy downlight in halls, kitchens, utility rooms, bathrooms, ensures, dressing areas and cloakrooms, pendant lighting in all other rooms
- CAT6 cabling in lounges, kitchens, family rooms and studies
- TV/FM DAB sockets in kitchens, reception rooms and bedrooms
- Mains-powered smoke detectors and lithium batter-powered carbon monoxide and dioxide alarms
- Ready for burglar alarm installation
HEATING & ELECTRICITY
- Underfloor heating to the ground floor
- Environmentally friendly air source heat pump
- Thermostatically controlled wall mounted radiators to the first floor
- Future-ready for solar installation to create 100% clean, green, home-generated electricity with the option to add storage batteries for excess electricity
BATHROOMS, ENSUITES & CLOAKROOMS
- Contemporary white Roca bathroom suites with sandy grey vanity units and chrome fixtures with sandy grey vanity units to the cloakrooms and white to the ensuites and family bathroom
- Chrome towel rails
- Hollywood Gloss Marble wall tiles in cloakrooms, bathrooms and ensuites
EXTERNAL FEATURES
- White aluminium bifold doors, white PVCu casement doors and GRP doors
- Electric vehicle charging point
- Dual external electrical point with waterproof cover on rear patio
- Water tap to rear or side of property
- Water-resistant combination key safe
INTERNAL FINISHES
- Amtico flooring in kitchens, utility rooms, bathrooms, ensuites, and cloakrooms
- Double glazed white PVCu windows with external glazing bars and flush casement style
- White satin pencil nose skirting boards and white internal doors with chrome ironmongery and hinges
AFTERCARE & WARRANTY
- On-site home demonstration before moving in
- Home care park including information to settle in, a schedule of internal and external finishes, and care and maintenance instructions
- A two year Arbora Homes Customer Care period and a 10 year ICW New Homes warranty
- Aftercare managed through Clixifix, an award-winning online customer portal
Arbora Homes is a member of the Home Builders Federation (HBF).
We continuously improve our offering and as such any specifications or property features may vary from time to time. These particulars should be treated as general guidance only.
THE DEVELOPMENT
Braiswick Place is an exclusive collection of 27 high-specification homes, thoughtfully designed to create a welcoming community while embracing modern sustainable building practices.
ALTERNATIVE ARBORA HOMES AT BRAISWICK
5 Bedroom Detached Home
-
Plot number14 & 15
-
Property size2820
-
Bedrooms5
-
Bathrooms4.5
-
Single Garage1
3 Bedroom Semi-detached Home
-
Plot number1, 12, 13, 16, 21, 22 & 25
-
Property size2002
-
Bedrooms4
-
Bathrooms3.5
-
Single Garage1
SALES AGENT
Connells
3a High Street
Colchester
CO1 1DA
01206 547 431
colchester@connells.co.uk


